在线
咨询
TOP

设计如何放飞儿童?丨来看看这几所国外幼儿园设计案例

 

 

户外二层的紧急楼梯延伸至老树下,让孩子可以亲密的感受到他们,自由地在院里的嬉戏玩耍。

 

 

 

将自然环境与园所联系起来。根据情况适当的隔离空间,让孩子们能识别、思考特定位置的行动与表现。

 

 

丰富的室内娱乐装置,设计建立起园所与自然的联系,丰富着孩子们日常学习生活。

 

 

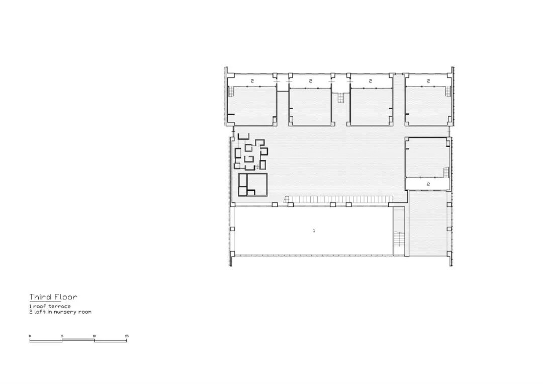
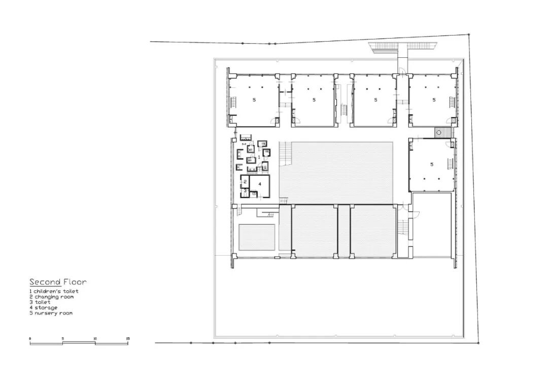
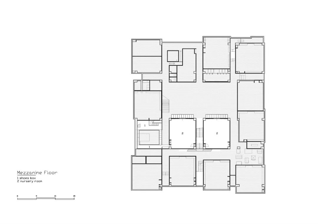
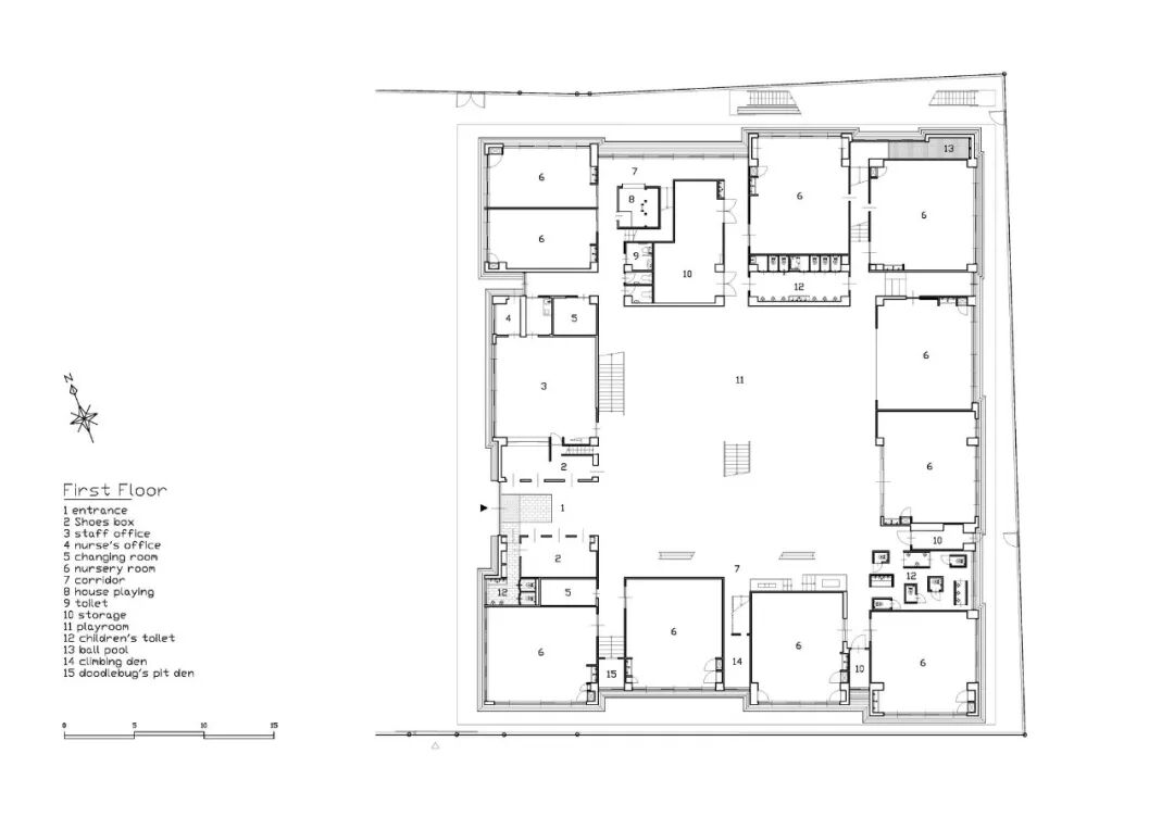
平面图
立面图
剖面图
 

03/

KO幼儿园

 

建筑师:HIBINOSEKKEI

  Kids Design Labo, Youji no Shiro
位置:日本 松山市, Ehime Prefecture
面积:2220.0平方米
建设时间:2019
 

 

重建的幼儿园所,通过将办公室、托儿所等各个房间横向纵向移动,创造出自由空间。空间上的设置帮助孩子们学会“跑”、“跳”、“堆”、“抱等动作。
 

▲一层中心位置的大型开放室游戏室。

▲孩子们在游戏室内跑跳玩耍。
 
攀爬、翻滚、奔跑时孩子喜爱的动作,空间中空这些丰富的设施,不仅给孩子们带来快乐,也改善了他们的体能,鼓励孩子们勇敢尝试、培养更多兴趣。
 
▲园中设有的攀爬网和攀岩设施。

 

平面图

立面图

剖面图

 

幼儿园是孩子们学习和成长的地方,每一处细节都是设计师深思熟虑做出来的。从孩子的角度出发,在丰富的环境中探索和学习,在兴趣中感悟知识的乐趣。充分融合教育与娱乐,给孩子一个幸福有意义的童年。